Расчет потребления электроэнергии котлом в сутки и за месяц
Почти все инновационные электрокотлы обладают коэффициентом полезного действия 99% и больше. Это означает, что при нагрузке котел мощностью 10 кВт будет расходовать 10.101 кВт электричества.

Такой мощности достаточно, чтобы нагреть жилой дом площадью – 100 м2. Количество теплоэнергии, расходуемое на обогрев жилого помещения, в значительной мере зависит от температуры окружающего воздуха на улице. Конечно, чем она будет более низкой, тем больше расход энергоносителя.
Расход исходя из м2 площади дома
Для того чтобы узнать сколько потребляет электрический котел отопления в месяц вначале определяют суточный расход электроэнергии.
Максимально возможный расход такого котла в сутки составляет:
24 * 10.101 = 242.42 кВт.
В ценовом выражении, по состоянию на конец 2019 года и тарифе на электроэнергию для Московской области, суточные затраты составят:
242,42 * 5.56 = 1347.87 руб./сутки.
Расход электроэнергии электрокотла для отопления частного дома в месяц составит:
1347.87 * 30 = 40410 руб/мес.
На протяжении отопительного сезона с 15.10 по 31.03, то есть за 136 отопительных дней, собственнику придется оплатить электроэнергию на нагрев дома:
1347,87*136= 183310 руб.
Тем не менее, это максимальный расчет. Фактически, низкие температуры наружного воздуха не бывают каждый день. Приблизительно, при прохождении отопительного сезона электрический котел расходует примерно 40-50% от максимума нагрузки.
Таким образом, реальные затраты для электроотопления 100м2 площади в центральной зоне России за сезон составит:
183310 * 0.5 = 91655 руб.
Классические электрокотлы
Далее, у меня вопрос, какой электрокотел выбрать для отопления дома 100 квадратных метров – классический ТЭНовый или электродный.
Что есть «классический»? Это значит, что в нем есть колба, в которой ТЭН греет теплоноситель. В роли теплоносителя может выступать самая обычная вода или антифриз.
В комплектации к такому котелку может идти циркуляционный насос, группа безопасности и расширительный бак. И все это может быть смонтировано в одном корпусе.

А может быть и набрано дополнительно. И тогда вы покупаете просто колбу с ТЭНами и блоком управления.
А ЦН, бак и группу безопасности ставите на трубопровод отопления отдельно.
Требования к установке
В рейтингах лучших электрических котлов обычно собрана информация о топовых моделях на сегодняшний день, однако, чтобы иметь полное представление об особенностях эксплуатации теплогенераторов этого типа, необходимо ознакомиться с основными нюансами их монтажа.
Помещение
Как известно, отдельную котельную строить для электрического котла не придется в любом случае, однако, к помещению, в котором его предполагается устанавливать, предъявляются следующие требования:
- Стены изготавливаются из негорючих материалов. Особенно это касается поверхности, на которой подвешивается (в случае с навесным оборудованием) теплогенератор.
- Расстояние до потолка не должно быть менее 20 см.
- Под нагревательным оборудованием запрещается прокладывать любые силовые кабели.
Электросеть
Особенности подключения каждой конкретной модели электрического теплогенератора к электросети обычно указываются в его инструкции по эксплуатации. При этом обязательно соблюдается минимально допустимое сечение проводки, которое зависит от мощности оборудования. Это касается и однофазного, и трехфазного подключения.
Почему КПД котла не 100 процентов
Когда мы с вами выбираем электрический котел для отопления частного дома, расход электроэнергии для такого котла для нас не слишком важен. И вот почему.
При работе электрического котла на контакты ТЭНа подается напряжение и ТЭН нагревает теплоноситель (воду или антифриз) в колбе котла.

При этом считается, что если вы подали электрическую мощность в 1кВт, то и получили на выходе 1кВт тепловой энергии. А если быть точнее, то при расходе 1 кВт*ч электроэнергии вы должны получить 1 кВт тепловой энергии за этот же промежуток времени.
Однако на деле так не получается. Почему?
И если последним показателем в расчетах при сравнении разных видов теплогенераторов можно пренебречь (поскольку этот показатель будет одинаковым для всех типов и видов котлов), то первыми четырьмя – нет.
В итоге наши «стопроцентные» котлы выдают нам в реальности КПД 93-95 процентов.
Советы покупателю
Выбирая электрокотел для отопления частного дома, следует обращать внимание не только на отзывы и расход электроэнергии, но и на другие параметры. 1
Способ монтажа
В квартире или в частном доме небольших размеров оптимально установить котел в настенном исполнении. Выглядят они эстетично, аккуратно вписываются в интерьер жилища, и в то же время способны выдавать значительную температуру. Что касается напольных вариантов, то их можно отнести к промышленным или полупромышленным моделям. Это агрегаты для больших домовладений с мощностью от 24 кВт
Способ монтажа. В квартире или в частном доме небольших размеров оптимально установить котел в настенном исполнении. Выглядят они эстетично, аккуратно вписываются в интерьер жилища, и в то же время способны выдавать значительную температуру. Что касается напольных вариантов, то их можно отнести к промышленным или полупромышленным моделям. Это агрегаты для больших домовладений с мощностью от 24 кВт
1. Способ монтажа. В квартире или в частном доме небольших размеров оптимально установить котел в настенном исполнении. Выглядят они эстетично, аккуратно вписываются в интерьер жилища, и в то же время способны выдавать значительную температуру. Что касается напольных вариантов, то их можно отнести к промышленным или полупромышленным моделям. Это агрегаты для больших домовладений с мощностью от 24 кВт.
2. Способ подключения к электросети. Экономичные электрокотлы невысокой производительности включаются в обычную розетку на 220 В. А вот для агрегатов средней или повышенной мощности необходимо будет прокладывать трехфазную сеть на 380 В. Обычная сеть на 220 В такую нагрузку не потянет.
3. Количество присоединений. Здесь стандартная классификация: одноконтурные и двухконтурные модели. Первые исключительно для отопления, вторые плюс к этому еще и нагревают воду для водопровода.
4. И все же главный показатель – производительность. Она определяет расход электроэнергии и площадь обогрева. Стандартный минимум – 100 Вт на метр квадратный
Обратите внимание на такой момент: чем хуже теплоизоляция вашего дома, тем большей мощности котел придется покупать, и, соответственно, больше потом платить за электроэнергию
Еще несколько ориентиров. По силе тока следует ограничиться максимумом 40 А. Патрубки электрокотла – 1 ½ ″ и более. Давление – до 3-6 атмосфер. Обязательна функция регулировки мощности – не менее 2-3 ступени.
Обязательно поинтересуйтесь качественными показателями местной электросети – при падении напряжения до 180 В по вечерам, импортная модель даже не включится.
Прежде чем покупать электрокотел на 10-15 кВт и выше, узнайте – потянет ли трансформатор, от которого запитан дом. А то потом придется прокладывать к своей усадьбе дополнительную линию.
Что касается конкретных моделей, то самые популярные – импортные, так как они при минимальной мощности обеспечивают высокую производительность. Среди самых покупаемых, по отзывам продавцов, такие:
- настенный, одноконтурный Tenko KEM, 3.0 кВт/220В, стоимость в районе 45-55$;
- настенный, одноконтурный UNIMAX 4.5/220, стоимость 125-200$;
- настенный, одноконтурный Ferroli LEB 12, 12 кВт, цена – 350-550$;
- настенный, одноконтурный Protherm Skat 9K, 9 кВт, стоимость 510-560$.
- https://kotle.ru/elektrokotly/skolko-potreblyaet-elektrokotel
- https://GradusPlus.com/kotly/elektricheskie/skolko-elektroenergii-potreblyaet-elektrokotel-otopleniya/
- https://bigkotel.ru/vidy-kotlov/skolko-elektroenergii-potreblyaet-elektricheskij-kotel-v-mesyats-sposoby-rascheta-i-ekonomii
- https://masterfibre03.ru/kotel/skolko-potreblyaet-elektrokotel.html
- https://samelectrik.ru/skolko-elektroenergii-potreblyaet-elektrokotel.html
- https://soloserv.ru/stroitelstvo/skolko-elektroenergii-potreblyaet-elektricheskij-kotel-kak-poschitat-i-sekonomit
- https://ProStroymaterialy.com/skolko-potreblyaet-elektricheskiy-kotel-otopleniya-v-mesyac/
- https://eco-kotly.ru/skolko-elektroenergii-potreblaet-elektriceskij-kotel-kak-poscitat-i-sekonomit/
Самый экономичный электрический котел отопления
Электрический котел отопления
Наступление холодов – это такой период, когда проблема отопления в загородном или частном доме становится наиболее острой и актуальной. Так как не всегда есть возможность подключиться к центральной отопительной системе, то приходится подыскивать различные альтернативные варианты. Альтернативная отопительная система должна не только эффективно обогреть помещение, но и быть экономичной. Для дачи наиболее оптимальным решением будет приобретение электрического котла для отопительной системы.
Такие котлы обладают многими преимуществами, среди которых можно выделить такие, как: компактный размер, относительно небольшой вес, простота в эксплуатации и в установке, недорогая стоимость и другие. Цена котла может зависеть не только от его параметров мощности, но также и от комплектации. Современные мощные котлы могут стоить довольно дорого и поэтому для дачи их покупать нецелесообразно. Поэтому возникает, как же выбрать самый экономичный электрический котел отопления?
Особенности
Преимущества отопительных котлов для дачной системы отопления:
- Уровень безопасности электрических котлов достаточно высок. По сравнению с газовым котлом, не существует риска утечки газа или взрыва. А если сравнивать их с печным отоплением, то самый экономичный электрокотел для отопления не выделяет продуктов горения и не нанесет вред владельцам дачного дома.
- Энергосберегающие электрические котлы отопления не требуют длительной и трудоемкой установки, а также довольно просты в использовании.
- Не нужно покупать топливо, транспортировать его и искать ему место для хранения.
- Не создают шума во время работы.
- Безопасны с экологической точки зрения и не смогут нанести ущерб окружающей среде.
- Температуру в помещении можно регулировать наиболее удобным для хозяев образом.
Система электрического отопления
Виды электрокотлов
Дачные экономичные электрические котлы отопления можно разделить на несколько категорий:
Индукционный котел. Для таких котлов не нужно покупать специальный теплоноситель. Такие экономные электрокотлы для отопления обладают довольно высокой мощностью за счет того, что в них отсутствует тепловой барьер. Еще одно преимущество таких котлов состоит в том, что отсутствует контакт с теплоносителем, так как тепловыделяющийся элемент наносится на поверхность бака равномерным образом.
Индукционный котел
Электродный котел. Такие котлы – самые экономичные электрические котлы отопления. Если сравнить электродный котел с ТЭНовым, то первый экономит на 40% больше электроэнергии. Среди их преимуществ можно выделить то, что они обладают небольшим размером, в них не образуется накипь и они могут нагреть воду буквально за несколько минут.
Электродный котел
ТЭНовый котел. Теплоноситель в отопительной системе, работающей на ТЭНовом котле, нагревается посредством трубчатых нагревательных компонентов, которые находятся в резервуаре. Среди достоинств котлов такого типа можно выделить такие, как: вероятность утечки тока равна нулю, так как между нагреваемой водой и элементом который выделяет тепло, полностью отсутствует любой контакт.
ТЭНовый котел
Поимо вышеперечисленной классификации, экономные электрические котлы отопления для дачи могут быть разделены на такие типы, как: напольные или настенные, однофазные или трехфазные, с одним контуром или с двумя контурами. Настенные экономичные электрокотлы для отопления дома обладают наименьшей мощностью. Самый простой котел обладает мощностью в 2,5 кВт и их лучше всего устанавливать в дачных домиках с площадью не более, чем 25 кв. метров.
Однако есть и настенные экономичные электрокотлы отопления, обладающие куда большими параметрами мощности. Энергосберегающие электрокотлы отопления с большой мощностью могут обогреть и здание с общей площадью в 600 кв. метров. Экономичный электрический котел отопления подключается к стандартной электросети, а в качестве теплоносителя в применяется незамерзающая жидкость или обычная водопроводная вода.
Что влияет на расход электричества газовым котлом
- Циркуляционный насос. Диапазон потребления, в зависимости от модели и степени установленной мощности, 45-150 Вт. Задействован он не всегда. Его расход также зависит от технологичности (магнитные роторы, наличие частотного преобразователя, компактность статора).
- Турбина. Потребляет от 10 до 70 Вт, ее работа регулируется автоматикой: скорость зависит от необходимого объема отводимых газов, т.е. от рабочей мощности котла.
- Горелка и электророзжиг. До 100 Вт в момент розжига.
- Автоматика. Это как сама электронная плата, так и дисплеи, всевозможные датчики, механизмы переключения.

Устройство энергозависимых настенных одноконтурных моделей на примере Buderus Logamax U072-24.
Способы снизить потребление электрического котла
Рачительный хозяин всегда постарается, чтобы снизить расходы на отопление, при этом, поддерживая в доме комфортную температуру. Конечно, для этого нужно принять различные теплозащитные мероприятия и выполнить наладку котельного оборудования.
Наиболее распространенные методы оптимизации системы электроотопления жилого дома:
- Самый действенный вариант, который влияет на потребляемость энергии — теплоизоляция стен дома. Слишком много тепловой энергии, расходуется на потери в старых окнах. Высокотехнологичные ПХВ-окна с многослойными воздушными камерами значительно снижают расходную часть производства тепла. Стенки строений, утепляют эффективными теплозащитными стройматериалами, с небольшой теплопроводимостью — пенопластом, минватою и другими. Также необходимо провести теплоизоляцию фундамента и крыши дома.
- Переход на оплату за электроэнергию по многотарифному учету, довольно рентабельное мероприятие. При этом котлоагрегат действует в ночной период в часы минимального потребления электроэнергии по самому низкому тарифу.
- Внедрение автоматических приборов управления электрокотлом. Снижение нагрузки на котел в режиме дежурного отопления, когда пользователи отсутствуют дома. Для того, чтобы автоматизировать работу котла, возможно, применить программируемые электронные термостаты либо котлы со встроенным программным обеспечением. Автоматика настраивает котельное оборудование на тепловой режим, потребляющий минимальный расход электроэнергии.
- Установка циркуляционного насоса для ускорения движения теплоносителя. В результате чего, нагретый теплоноситель работает в низкотемпературном режиме, что будет повышать эффективность котла и продолжительность эксплуатации.
- Использование системы погодозависимого регулирования. Смысл ее состоит в том, что электросигнал от первичного датчика на перемену теплового режима работы электрического котла поступает на ТЭНы при изменении температуры наружного воздуха. Следовательно, при увеличении наружной температуры окружающего воздуха, котел уменьшает термическую мощность, а, значит, и потребление энергии. В связи, с чем ненужная генерация тепловой энергии отсутствует. Погодозависимое регулирование электрокотлом одновременно с домашними термостатами либо термостатическими клапанами дают возможность добиться ощутимого эффекта по экономной работе оборудования.
- Использование вентиляции с рекуперацией. Такое устройство возвращает в дом все тепловую энергию, которая ранее терялась вместе с теплым комнатным воздухом в период проветривания. При применении таких комплексов большой мощности, вообще не потребуется отворять окна для вентиляции. При указанном методе очистки воздуха, влажность и чистота окружающего воздуха станет поддерживаться на санитарном уровне.
В завершении нужно отметить, что электроотопление дома все-таки достаточно высокозатратный метод вне зависимости от конкретной технологии и конструкции электрического котла.
Его используют исключительно в тех ситуациях, когда нет возможности подсоединить объект к газовой магистрали. Тем не менее, смонтировав электроотопление грамотно, с соблюдением норм и стандартов, оборудовав котел современными приборами регулирования и защиты, а также выполнив хорошую теплозащиту здания, можно добиться работы системы отопления в эффективном режиме, обеспечив при этом в доме тепло и уют.
Расход исходя из параметров дома

Более точно предположить возможную потребляемую мощность электрокотла можно зная параметры дома и его тепловые потери (также измеряется в кВт). Для поддержания комфортной температуры, отопительное оборудование должно восполнять теплопотери дома. Это значит, что теплопроизводительность котла = теплопотери дома, а поскольку КПД электрокотлов 99% и более, то, грубо, теплопроизводительность электрокотла также равна и расходу электроэнергии. То есть теплопотери дома примерно отражают расход электрокотла.
Существуют усредненные данные теплопотерь домов из различных материалов покрытий (в расчет берутся дома с высотой потолков 2,7 м, стандартной площадью остекления, находящиеся в климатической зоне Подмосковья). Разница температур принята за 26°C (22°C в доме и -4°C на улице), это усредненное значение за отопительный сезон в Московской области.
| Теплопотери типичных жилых домов площадью 100 м2 | ||
| Тип покрытия и его толщина | Средние теплопотери, кВт (в час) | Пиковые теплопотери при -25°С, кВт (в час) |
| Каркас, утепленный минватой (150 мм) | 3,4 | 6,3 |
| Пеноблок D500 (400 мм) | 3,7 | 6,9 |
| Дом по СНиП Мос. обл. | 4 | 7,5 |
| Пенобетон D800 (400 мм) | 5,5 | 10,2 |
| Кирпич пустотный (600 мм) | 6 | 11 |
| Бревно (220 мм) | 6,5 | 11,9 |
| Брус (150 мм) | 6,7 | 12,1 |
| Каркас, утепленный минватой (50 мм) | 9,1 | 17,3 |
| Железобетон (600 мм) | 14 | 25,5 |
От чего зависит потребляемая мощность
На размер электромощность котла влияет целый ряд взаимосвязанных величин. Для усредненных расчетов принимают высоту перекрытия в доме до 3-х м, тогда расчет можно свести к простому соотношению: 1 кВт мощности котлоагрегата обеспечит нагрев на 10 м2 площади здания.
Эта формула достаточно точно позволяет определить, сколько электроэнергии потребляет электрокотел, установленный в климатическом районе средней полосы России.

Для более точного расчета необходимо дополнительно учесть поправочные коэффициенты по таким показателям:
- материал и техническое состояние оконных изделий, дверей и покрытия пола;
- материал стеновых конструкций;
- материал и конструкция кровли;
- система утепления здания;
- климатический район.
Если дом продувается со всех сторон, то собственнику и 5 кВт на 10 м2 вероятно будет мало. Энергосбережение объекта отопления непременное условие эксплуатации такого котла и оно напрямую зависит от качественной теплоизоляции конструкции объекта отопления и соблюдения требований строительной технологии при его возведении.
Специалисты не советуют брать котлоагрегат с большим запасом по мощности, поскольку это приводит к перерасходу электроэнергии, предельный запас должен быть в пределах от 15% до 25%.
Дешевое отопление дома электричеством с использованием резервного источника тепла
Работа котла на электричестве может прерваться из-за отключения электроэнергии, неполадок на линии, обрыва или замыкания проводов, поэтому использование комбинированного котла (дрова/электричество) не оставит вас без тепла в доме.
Котел для отопления на дровах и электричестве – это надежный, универсальный, функциональный агрегат, благодаря которому можно обеспечить постоянное отопление дома. Этот котел может работать как на твердом топливе (дрова, брикеты, отходы древесины), так и на электричестве одновременно. Такая многофункциональность возможна за счет хорошо продуманной уникальной конструкции оборудования.
Стоимость тенового котла в разы меньше, чем у агрегата с индуктивным или электродным нагревом
Конструкция комбинированного котла для отопления на дровах и электричестве
Отличительной чертой комбинированного котла является наличие ТЭНа. Топка для дров размещена в нижней части агрегата. При сжигании древесины тепловая энергия нагревает теплоноситель и нагретая жидкость (вода) направляется в водяную систему отопления. Такие котлы оборудованы устройствами, которые отвечают за автоматическое включение/выключение ТЭНа в зависимости от установленной температуры теплоносителя. Когда древесина сгорает и в топке спадает жар, и температура воды падает, в работу включается ТЭН, и котел, потребляя электроэнергию, поддерживает заданную температуру. Все манипуляции происходят благодаря автоматике.
Устройство комбинированного электро-дровяного котла
Мощность тепла, выделяемого при сгорании твердого топлива, составляет 25-35 кВт. Этой мощности вполне хватает для обогрева помещения в 100-120 м?, а ТЭН используется для поддержания стабильной температуры в доме. Комбинированные системы обогрева особо популярны в частном секторе, поскольку для нагрева помещения используется дешевое топливо. Благодаря встроенным ТЭНам, есть возможность варьировать режим отопления.
Типовая схема подключения: 1 — электрический котел; 2 — система управления; 3 — группа безопасности; 4 — расширительный бак; 5 — циркуляционные насосы; 6 — радиаторы; 7 — распределительная гребенка; 8 — теплообменник (для бассейна); 9 — бойлер косвенного нагрева; 10 — полотенцесушитель; 11 — теплый пол; 12 — счетчик воды; 13 — приточная вентиляционная установка
Способ 7 — инфракрасные обогреватели (самые экономные)
Инфракрасные обогреватели считают самыми экономичными из всех видов электрообогревателей. Им не нужны нагревательные тэны и трубы с водой. Инфракрасные обогреватели нагревают предметы, а не помещение. Затем от нагретых предметов нагревается и воздух. Если электрокотел можно сравнить с чайником, то инфракрасный — с микроволновкой.
Особо популярны инфракрасные панели. Их устанавливают на потолке или на стенах жилых и производственных помещениях. Поскольку площадь обогрева увеличена, в комнате становится тепло быстрее обычного. Использовать такую панель можно как самостоятельный источник обогрева или как дополнение к существующей системе. Хорошо сочетается инфракрасный обогреватель с электродными котлами. Например, инфракрасный обогреватель можно включать только весной и осенью, когда включать основное отопление ещё рано, или когда за окном внезапно похолодало.
На фото инфракрасная панель GROHE, Германия
Что дает электродный котел
Сама идея электродного котла состоит в том. чтобы отказаться от применения ТЭНа. Если вы сейчас посмотрите на схему электродного котла, то увидите, что электрический ток проходит через теплоноситель от электрода, на который подается напряжение к корпусу котла, который также является проводником.
Конечно, любой грамотный электрик скажет, что там никакого движения в реальности нет
Но для нас это сейчас совершенно неважно
А важно то, что потери в данном случае минимизированы. И благодаря этому электродный котел имеет КПД до 97 процентов. Куда деваются эти самые 3 процента от 100, я писал вам чуть выше
Куда деваются эти самые 3 процента от 100, я писал вам чуть выше.
Нам же важно, что при прочих равных электродный котел расход электроэнергии будет иметь чуть меньше, чем классический котел с ТЭНами. Это раз. Во-вторых, сам процесс нагревания теплоносителя происходит быстрее, потому что при работе электродного котла прогревается сразу весь объем воды, а не только слой рядом с поверхностью ТЭНа
Во-вторых, сам процесс нагревания теплоносителя происходит быстрее, потому что при работе электродного котла прогревается сразу весь объем воды, а не только слой рядом с поверхностью ТЭНа.
Но в такой схеме есть не только плюсы, но и минусы. О них вы прочитаете ниже, в разделе «Отзывы».
Способы расчета мощности электрокотла
Можно выделить две основные методики расчета необходимой мощности электрического котла. Первая основана на отапливаемой площади, вторая на расчете теплопотерь через ограждающие конструкции.
Расчет по первому варианту очень грубый, основан на единственном показателе – удельной мощности. Удельная мощность приведена в справочниках и зависит от региона.
Расчет по второму варианту сложнее, но учитывает множество индивидуальных показателей конкретного здания. Полный теплотехнический расчет здания – задача достаточно сложная и кропотливая. Далее будет рассмотрен упрощенный расчет, тем не менее обладающий необходимой точностью.
Независимо от методики расчета, количество и качество собранных исходных данных напрямую влияют на правильную оценку требуемой мощности электрокотла.
При заниженной мощности оборудование будет постоянно работать с максимальной нагрузкой, не обеспечивая нужного комфорта проживания. При завышенной мощности – неоправданно большое потребление электроэнергии высокая стоимость отопительного оборудования.

Однофазные и трехфазные электрические котлы
К выбору котла следует отнестись ответственно, поскольку нужно учитывать все нюансы, касающиеся электрообслуживания вашего дома. Электролинии не всегда способны справиться с нагрузкой, которая повышается после установки котла. Чтобы таких проблем не возникало, посетите отделение энергосбыта, к которому относитесь, и уточните (или попросите рассчитать) максимальную мощность, которую они смогут обеспечить. При расчете необходимых киловатт не забудьте про бытовые электроприборы, находящиеся у вас дома.

Схема строения одноконтурного настенного электрического котла: 1 — электрошкаф; 2 — контрольные лампы; 3 — регулятор температуры; 4 — термометр/манометр; 5 — выключатели мощности; 6 — главный выключатель; 7 — расширительный бак; 8 — кабельный ввод; 9 — предохранительный клапан; 10 — насос; 11 — обратная линия котла; 12 — штекерное соединение контура регулирования; 13 — предохранительный ограничитель температуры; 14 — предохранитель системы управления; 15 — воздушный клапан; 16 — облицовка котла с теплоизоляцией; 17 — реле давления воды; 18 — нагревательные стержни; 19 — подающая линия котла
Электрический котел устроен довольно просто: он содержит теплообменник и блок управления и регулировки. Существуют доукомплектованные модели, которые снабжены расширительным баком, фильтром и насосом.
Для отопления частных домов применяются электрокотлы небольшой мощности: однофазные и трехфазные.

Схема каскадного подключения электрического котла
Однофазный электрический котел
Однофазным считается котел, работающий от сети 220 В. Подключить его не составит труда, поскольку все дома оснащены необходимым напряжением. Мощность устройства варьируется от 6 до 12 кВт. Целесообразно использовать такой котел для площади, не превышающей 100 м?. Особенности электрического котла для отопления дома (220 В):
- работает по принципу водонагревательного прибора (бойлер, чайник);
- для работы достаточно обычной сети (220В);
- для его установки не нужно получать специальное разрешение.

Электрический котел для использования в частном доме
Трехфазный электрический котел
Трехфазный котел более мощный, чем однофазный, и подходит для установки на площади более 100 м?. Чтобы сеть могла выдержать нагрузку при эксплуатации котла, их производят трехфазными, то есть подключаются они к сети на 380 В. Особенности трехфазного котла:
мощный
Нужно брать во внимание отапливаемую площадь. На 10 м? требуется 1 кВт + 10-20% (для запаса);
работает от трех фаз (380 В), необходимо увеличивать мощность подачи тока в доме;
необходимо получение специального разрешения в энергосбыте на увеличение потребляемой мощности и установку котла;
номинальный ток, который должен быть в каждой из трех фаз, варьируется от 6,1 до 110 А. Этот показатель влияет на выбор автоматического выключателя, проводку, ее поперечное сечение (допустимые показатели указаны в таблице ниже). Правильный подбор необходимых элементов исключит возможность возгорания.
Таблица «Значения сечения кабеля и тока предохранительных автоматов»:
| Мощность котла (до указанного значения) | Значение тока предохранительных автоматов, для однофазных котлов | Значение тока предохранительных автоматов, для трехфазных котлов | Сечение кабеля для однофазных котлов | Сечение кабеля для трехфазных котлов |
| 4 кВт | 25 А | 4,0 мм? | ||
| 6 кВт | 32 А | 6,0 мм? | ||
| 10 кВт | 50 А | 10,0 мм? | ||
| 12 кВт | 63 А | 16,0 мм? | 2,5 мм? | |
| 16 кВт | 32 А | 4,0 мм? | ||
| 22 кВт | 40 А | 6,0 мм? | ||
| 27 кВт | 50 А | 10,0 мм? | ||
| 30 кВт | 63 А | 16,0 мм? | ||
| 45 кВт | 80 А | 25 мм? | ||
| 60 кВт | 125 А | 35 мм? |
Какой бы котел не устанавливался для дешевого отопления дома электричеством, в любом случае, необходимо предусмотреть резервный источник тепла.

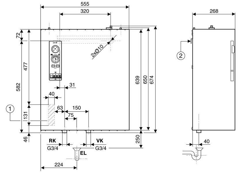
Монтажные размеры электрического котла Buderus Tronic 5000 Н
Что влияет на потребление электричества
Все котлы превращают используемую энергию в тепло в соотношении 1:1. Со 100-процентным КПД мизерными потерями в проводах и соединениях пренебрегают. Исключение составляют тепловые насосы, но они пока применяются редко.
Таким образом, есть лишь 2 способа снизить потребление электричества:
- Сократить теплопотери. Для этого жилище оклеивают минеральной ватой или пенопластом, заделывают щели.
- Оптимизировать работу котла с целью исключить перерасход энергоресурса.

Вторая задача тоже решается 2 путями:
- Использованием погодозависимой автоматики. Такая система своевременно предупреждает котел о начавшемся потеплении, и тот успевает снизить мощность, не перегревая помещение.
- Программированием. Модель с такой функцией, согласно настройкам пользователя, уменьшает теплопроизводительность, когда жильцы на работе или спят. В остальное время прибор выходит на нормальный режим.
Можно, не снижая потребления, уменьшить финансовые затраты. Переходят на дифференцированный учет расхода электроэнергии с большой скидкой ночью (1,68 руб. вместо 3,89). Систему отопления оснащают накопителем тепла — большой емкостью, в которой котел за льготное время нагоняет температуру рабочей среды до +98˚С. Днем кипяток из нее понемногу подается через смесительный узел в контур по мере необходимости, обогреватель в это время не работает.
В таком случае за сезон придется заплатить 17388 × 1,68 = 29 212 руб. Но есть нюанс: номинальная мощность котла должна вдвое превосходить расчетную, ведь ночью он работает и на обогрев, и на «зарядку» теплоаккумулятора. Для приведенного примера потребуется агрегат на 20 кВт.
Два лучших способа снизить потребление электрокотла
Как выбрать внешний термостат для электрокотла и экономить на отоплении до 30% каждый месяц
Если автоматикой не предусмотрена возможность программирования режима работы, серьезно снизить расход электроэнергии котлом можно подключив к нему программируемый комнатный термостат (при наличии соответствующих контактов, информация о возможности подключения внешнего управления всегда указывается в технических характеристиках).

Программируемый комнатный термостат управляет работой котла ориентируясь на измерения температуры воздуха в помещении, в котором установлен, а не на температуру теплоносителя
Однако главной и наиболее важной в целях экономии задачей является режим программирования настроек работы на ближайшие сутки и неделю. Например, на рабочее время, когда хозяева отсутствуют дома, можно установить температуру 15°C
А на время сна – 18 или 19°C. Такие параметры не повлияют на комфорт, однако позволят существенно уменьшить итоговый расход электроэнергии.
Вторым незаменимым элементом при отоплении электрокотлом явяется электрический счетчик, дифферинцирующий потребление электроэнергии по двум, а лучше по трем временным зонам. Например, для Московской области действуют такие дифферинцированные по временным зонам тарифы:
- пиковая зона (с 7:00 до 10:00 и с 17:00 до 21:00) – 5.06 руб за 1 кВт.ч;
- полупиковая зона (с 10:00 до 17:00 и с 21:00 до 23:00)– 3.89 руб за 1 кВт.ч;
- ночная зона (с 23:00 до 7:00) – 1.68 руб за 1 кВт.ч.
На практике затраты на покупку, оформление и установку прибора учета, дифферинцирующего потребление, окупаются за несколько месяцев, поскольку снижают расходы в денежном выражении на 15-25%.
ИнструкцииКотлыСпособы экономииЭлектрокотлы
Примерное энергопотребление
Стоит ли вообще использовать для обогрева электрокотел или лучше приобрести более экономичный вид оборудования? То, что КПД таких приборов вплотную приближается к единице, еще не означает выгодного решения проблемы с отоплением. Цена электроэнергии немаленькая, а «кушать» ее ваш котел будет весь сезон и помногу.
Сперва сделайте ориентировочный расчет для своего дома по такой схеме:
1. Требуемая производительность в киловаттах – площадь отапливаемых помещений, поделенная на 10.
2. Величина теплоты – полученная в п.1 мощность, умноженная на суммарное время функционирования прибора за сутки. Здесь уже нужно знать, будет ли обогрев частного дома электрическим котлом «главным» или резервным. Для первого варианта по минимуму можно взять 12 ч, в случае с комбинированной системой – вычесть время работы основного оборудования.
3. Суточную величину удобнее сразу перевести в показатели за месяц – умножаем на 30. Чтобы выйти на годовую цифру – еще на 7 (столько обычно длится холодный сезон).

Подсчитав таким образом расход электроэнергии, не спешите пугаться – результат еще нужно разделить на 2, чтобы приблизить его к реальному режиму работы системы отопления. На максимальной мощности эксплуатируется от силы 2-3 месяца. В остальное время температура за окном не -20, а значит, и энергопотребление будет регулироваться в сторону уменьшения.
Определив расход по действующим тарифам, рассчитайте, в какую сумму вам обойдется электрообогрев за год и за каждый месяц отопительного сезона. Только после этого можно решать, насколько целесообразной будет покупка.
Особенности использования электрокотлов в системе обогрева дома
Тепло – это неотъемлемая составляющая уюта, а электрокотел для отопления частного дома – верный инструмент для создания тепла в холодную погоду, поэтому от его корректной работы будет зависеть комфорт проживания в определенном здании. В некоторых случаях люди предпочитают электрокотлы 3 квт купить в качестве альтернативы газовым аналогам. До сих пор не все регионы страны газифицированы, поэтому собственники решают удовлетворить потребности в обогреве жилища монтажом электрического котла.
Мощный электрокотёл для отопления дома 200 квадратных метров может быть использован для двухэтажных частных владений, а небольшой котел мощностью 10 кВт подойдет для эффективного отопления дома площадью около 100 квадратных метров. Владельцы дачных домиков и небольших усадеб могут использовать в качестве базового отопительного прибора электрокотел 3 квт, мощности которого достаточно на обогрев помещения площадью до 35 квадратных метров.
Минусы электрического отопления заключаются в следующих моментах:
- котлы не обладают достаточным запасом мощности для обогрева больших частных домов;
- для бесперебойной работы нужен постоянный источник электричества;
- необходима новая проводка, которая позволит использовать установленное электрооборудование для отопления на полную мощность.
Плюсы использования электрокотлов представлены следующим перечнем:
- стандартный электрокотел отопления легко монтировать и подключить к контуру;
- для установки не требуются разрешительные документы от коммунальных служб;
- наличие дымохода не является критическим требованием;
- бесшумная и безотходная работа прибора;
- возможность подсоединения параллельных контуров (система горячего водоснабжения, теплый пол и пр.).

























































