Схема уличного туалета
Наиболее распространенным вариантом дачного или садового туалета является прямоугольная постройка. Ее еще называют «скворечник» так как в варианте с односкатной крышей она очень его напоминает.

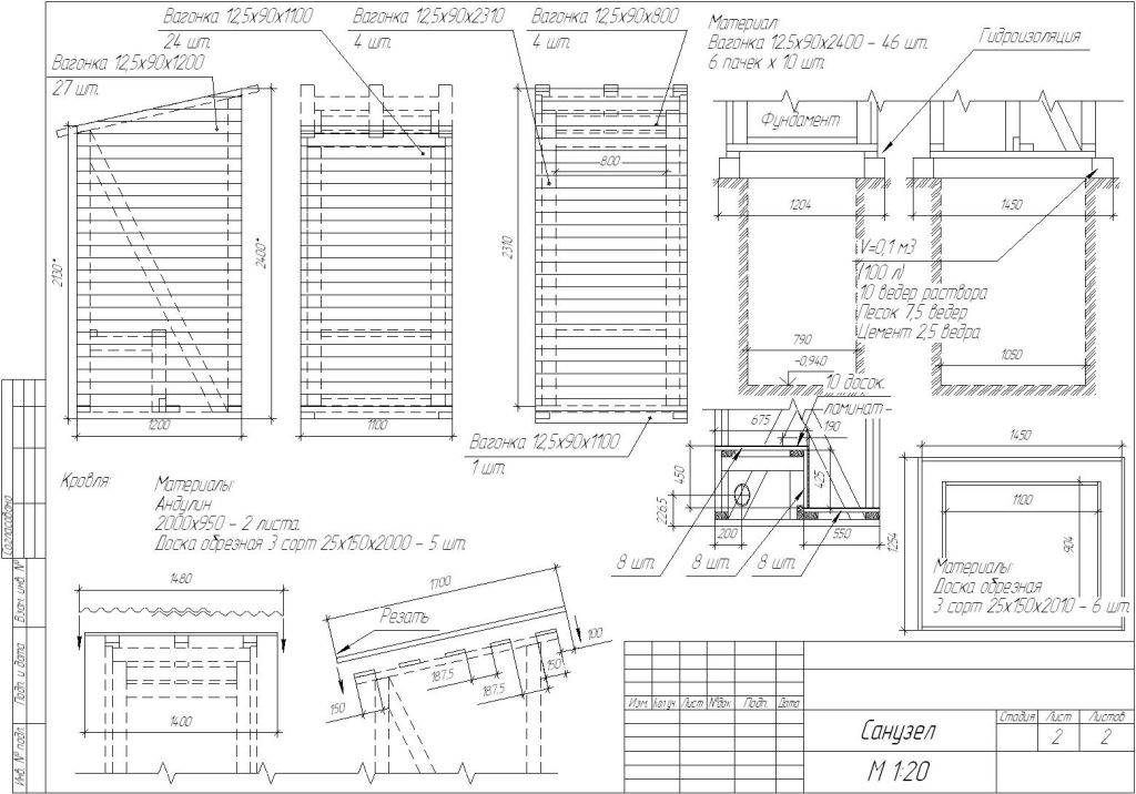
Проект дачного туалета из дерева типа «Скворечник» (чтобы увеличить размеры картинки, щелкните по ней левой клавишей мышки)
Образцы дачных туалетов: чертежи одинаковые, исполнение разное

Несмотря на то, что постройка утилитарная, при желании ей можно придать привлекательный вид и скворечник превратится во вполне привлекательное небольшое здание. Например, можно сделать из этой постройки маленькую мельницу.
Дачный туалет-мельница — немного фантазии и неприглядная постройка становится украшением участка (чтобы увеличить размеры картинки, щелкните по ней левой клавишей мышки)

Тот же скворечник, но из сруба — уже совсем другой вид. Особенно гармонично все будет смотреться, если здание на участке выстроено (или будет выстроено) тоже из бревна.
Даже самый простой туалет из бревна смотрится почти как экзотика. Причем, его можно использовать и как зимний вариант (чтобы увеличить размеры картинки, щелкните по ней левой клавишей мышки)

Для регионов, где древесина — роскошь, и расходовать ее на постройку туалета нерационально, ту же конструкцию можно обшить другим материалом. Например, каркас обшивается любым листовым материалом — фанерой, ДВП, ГВЛ. На них снаружи можно уложить отделочный материал — плитку или декоративный камень. Еще более бюджетный вариант — обшить профнастилом.
Туалет на даче своими руками строят из любого материала. Этот — из профнастила (чтобы увеличить размеры картинки, щелкните по ней левой клавишей мышки)

Это тот тип туалета, Который несложно построить из кирпича. Делают их обычно в полкирпича. Никаких сложностей даже для неопытного каменщика нет. Кладка со смещением, раствор — цементно-песчаный.
По тому же проекту и чертежу можно построить туалет из кирпича (чтобы увеличить размеры картинки, щелкните по ней левой клавишей мышки)
Схема и размеры дачных туалетов
Схема постройки дачного туалета одна и та же, в отличие от параметров резервуаров, которые рассчитываются в соответствии с интенсивностью использования приспособления, количества людей, посещающих дачу, сезонности и продолжительности таких визитов.
Классическим вариантом считается домик-«скворечник» прямоугольной формы. Он легок в исполнении и удобен при использовании. Для комфорта достаточно выполнить следующие размеры туалета на даче своими руками:
- высота – 2200 мм,
- ширина – 1500 мм,
- длина 1000-1500 мм.
Если такие размеры покажутся хозяину недостаточными, можно построить туалет на даче своими руками, размеры которого будут больше.
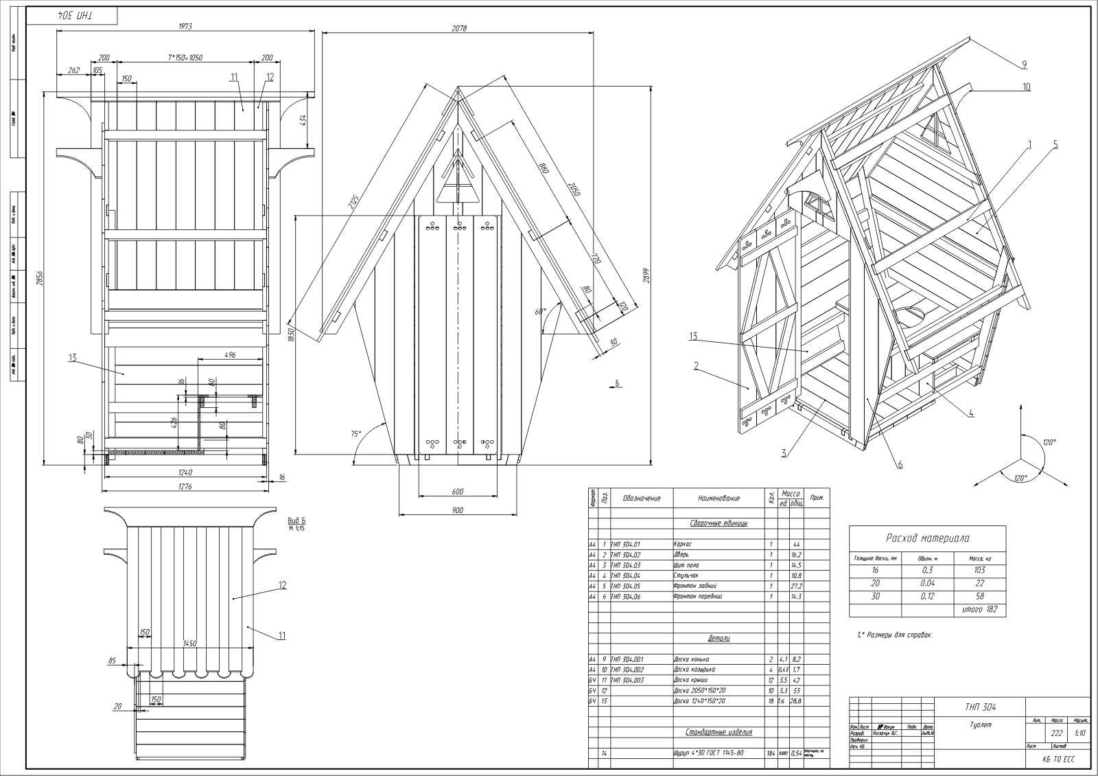
Сторонники эстетики могут предпочесть построить дачный туалет своими рукам, используя чертежи более сложной конструкции – домика-«шалаша», имеющего небольшое основание и практически состоящего из двух наклонных плоскостей.
Виды домиков для дачных туалетов — «шалаш» и «скворечник»




Чертежи туалетной кабинки
Туалетная кабинка может иметь и другую конструкцию, но принцип постройки у всех идентичен. Вот несколько примеров.
Рис.40.
Рис.41.
Рис.42.
Рис.43.
Рис.44. Туалет изготовлен на основе деревянного каркаса и обшит вагонкой.
Рис.45. Самый простой — это деревянный уличный туалет.
Рис.46. Оригинальные туалеты для дачи фото.
Рис.47. Красивый туалет на даче фото. Туалет в форме бочки – очень оригинальная идея.
Рис.48. Как построить интересный туалет на даче? Сделать его необычной формы.
Рис.49. Как замаскировать туалет на даче фото. Обшить его блок хаусом и покрасить его в цвет коры дерева.
Рис.50. Туалет на даче из бревна.
Рис.51. Как покрасить туалет на даче. Оригинальная идея.
Рис.52. Туалет на даче из сайдинга.
Санитарно-гигиенические нормы
Установка туалета за городом — это довольно простой процесс, который при полноценном изучении не будет требовать помощи специалистов. Но при таком строительстве всё-таки нужно учитывать некоторые правила. Главные нормы:
- Для начала нужно убедиться в том, что строительство такой конструкции не будет приносить дискомфорт соседям.
- Место для монтажа такой конструкции будет подбираться особо тщательно. Такое строительство должно проходить в полном соответствии с санитарными требованиями в отношении зоны расположения санузла. Нарушение таких правил в результате приведёт к ухудшению общей экологичности района (грунтовых вод и земли), что повлечёт за собой штрафы от санитарной службы и даже трудности со здоровьем.
- При разработке чертежей нужно продумать способ, согласно которому будет происходить полноценная очистка ямы.
- При выборе конструкции нужно ограничиваться главными факторами. Первым из них будет водный горизонт дачи. Если показатель пролегания почвенных вод высок, то выгребную яму нужно полностью герметизировать.
Фундамент под туалет на даче – какие есть варианты
Итак, давайте будем отталкиваться от того, что принято решение сделать прочную конструкцию
В таком случае вам не обойтись без столь важного элемента, как фундамент. Здесь все вполне можно сделать своими руками, поскольку для такой работы нужны самые минимальные навыки строительства
Такой вариант позволит сэкономить определенную сумму, ведь за услуги специалистов нужно платить.
Любая такого рода работа начинается с проектирования. Здесь также нужно будет сделать чертежи, самые простые – просто с указанием размеров. Впрочем, в первую очередь следует определиться с типом фундамента. Здесь есть несколько вариантов. Это, в частности:
- ленточный;
- столбчатый;
- плитный;
- свайный.
Первые 2 являются наиболее распространенными. К тому же их можно сделать и своими руками. Естественно, следует придерживаться определенных правил, чтобы в будущем не возникло никаких проблем. Давайте рассмотрим, как это делается.
Ленточный фундамент – это минимальные трудозатраты и относительно небольшой расход материалов. Нам, в частности, понадобятся:
- цемент (М300 или более высокой марки);
- гравий;
- песок;
- доски.
Нам также следует подготовить разметочный шнур и деревянные колышки. Бетон можно замешать вручную или же использовать бетономешалку. Наиболее оптимальный вариант для туалета – мелкозаглубленное основание высотой не менее 10, шириной – 20-25 сантиметров. Следует отметить еще один момент. Опытные строители рекомендуют, чтобы расстояние от ямы непосредственно до ленты фундамента составляло не менее 30 сантиметров.
Перед тем как приступать к работе, нам нужно определиться с тем, где будет стоять туалет. Далее делаем соответствующую разметку, вбив колышки и натянув между ними шпагат. После этого выкапываем по периметру ров глубиной не менее 40 сантиметров. Теперь можно извлекать колышки
Делать это следует осторожно, поскольку они еще пригодятся, когда мы будем заливать опалубку. Дно вырытого рва нужно утрамбовать, предварительно тщательно разровняв
Кстати, многие рекомендуют сделать еще и глиняный замок. Далее засыпаем в ров песок и гравий – каждый из слоев (5-7 и 10-15 сантиметров соответственно) выравнивается и утрамбовывается.
После этого можно приступать к следующему этапу – опалубке. Для этого сперва устанавливаем назад вытянутые ранее колышки. Раствор замешиваем из цемента и песка в соотношении 1 к 3. Чтобы повысить прочность, можно также добавить небольшое количество гравия. Наиболее оптимальный вариант – залить всю опалубку сразу. По большому счету это все – теперь осталось лишь подождать, пока бетон застынет. После этого можно продолжать работу по установке туалета.
Второй наиболее распространенный тип фундамента для дачного клозета – столбчатый. Процесс его возведения будет отличаться от ленточного. В частности, на первоначальном этапе нам нужно установить столбы, которые и станут опорой туалета. Здесь также в первую очередь делается разметка. В случае со столбчатым фундаментом для туалета, столбы устанавливаются только лишь по углам, поскольку из-за относительно небольшого веса всей конструкции отсутствует необходимость установки промежуточных опор.
Далее выкапываем ров. Ширина его зависит от диаметра столбов, которые будут устанавливаться. Глубина должна соответствовать уровню промерзания почвы. Дно вырытой ямы следует укрепить и поставить гидроизоляцию – лучше всего для этого подходит рубероид. После этого засыпаем яму песком и гравием (5-7 и 10-15 сантиметров соответственно), не забыв разровнять каждый из слоев, и утрамбовать.
Дальнейший процесс зависит от того, какие мы выбрали опоры. Можно, например, приобрести уже готовые железобетонные изделия. Альтернативный вариант – сделать столбы своими руками. В качестве опалубки здесь подходит рубероид – его следует сложить в несколько слоев и свернуть, придав нужную форму. Также неплохой вариант – цементно-асбестовые трубы, полость которых заливается бетоном.
Устанавливаем столбы в яму и фиксируем их в нужном расположении – это можно сделать с помощью камней, досок и так далее. Если вы решили использовать бетонные блоки, то в яму следует насыпать гравий или камни, после чего залить ее бетоном
Работать нужно очень осторожно, внимательно наблюдая, чтобы опора случайно не сместилась в сторону
Грунт — общие советы по строительству
Кирпичная выгребная яма
Считается, что возводить на грунте туалет без каких-либо дополнительных мер по укреплению можно, если его несущая способность – не меньше 1,7 кг/см². Как правило, размеры кабинки туалета в плане редко бывают больше 2,5-3 м², а хозяйственного блока 15-20 м². Слишком пучинистой считается почва, которая пучится уже при промерзании на 12%.
Более всего пучится гумус. Если взять его слой в 50 см и умножить на 0,12 — получим 6 см. Рекомендуется, чтобы чертеж учитывал именно эту величину.
На однородной рыхлой почве равномерно вспучивающаяся поверхность – размеры по горизонтали равны 100 абсолютным величинам пучения; здесь 6 м.
Туалет с размерами 6х6 м в плане встретить вряд ли получится, значит, туалет можно возводить без фундамента.
Конструкция с выгребной ямой
Простейший туалет, используемый с незапамятных времен. Не нужны никакие емкости, и четкий чертеж вряд ли нужен, если будет строиться такой туалет, вполне хватит эскиза. Построить летний деревянный туалет не очень сложно, начинать следует собственно с рытья ямы для отходов, при этом помня, что они должны будут как-то доставаться.
Затем идет устройство будки туалета. Да, добавим, что после заполнения ямы она может засыпаться, а, так сказать, надземная часть постройки (будка) переносится на новое место – новую яму. Здесь хорошо, когда уличный туалет деревянный, такой будет легче тягать с места на место.
Проект дачного туалета из дерева типа Скворечник
Кстати, рекомендуется заблаговременно сделать чертеж, где будут указаны последующие места расположения туалета, если его планируется перемещать. Так, через время не будет неприятностей, связанных с тем, что место, где должен находиться новый деревянный теремок, занято. А переносят уличный летний туалет раз в 2-3 года.
Таким образом, построить туалет с ямой легко, что является плюсом. Но вот неприятный запах, который идет из него, – это, конечно, большой недостаток, и забывать о нем не следует.
Что касается непосредственно постройки туалета, инструкция будет такой:
Туалет с выгребной ямой
- роется яма 1,5-2 м глубиной;
- стенки ее укрепляют досками, кирпичом или бетонными кольцами;
- внутрь можно поставить старую бочку или выложить яму автомобильными покрышками;
- дно бетонируется или засыпается щебенкой;
- щели конопатятся до герметичности.
Затем идет установка домика. Он ставится на четыре кирпичных столбика – фундамент, защищающий деревянный корпус от сырости. По виду это может быть теремок, скворечник, иная форма. Кирпичные столбики сверху изолируют с помощью рубероида. Чтобы правильно определиться с размерами и не ошибиться с количеством стройматериалов, предварительно рекомендуется все же составить проект.
На столбы кладется рама из бруса 100х100, грунтованная и окрашенная.
По углам производится установка четырех стоек, которые крепятся при помощи металлических пластин. Поскольку требуется обеспечить уклон крыши, задние стойки делаются короче передних. Над самой выгребной ямой для туалета делается каркас для сидения.
Вверху монтируются балки для крыши, на которые стелется рубероид и шифер. На будку с шагом 15 см прибиваются брусочки, на которые крепится финальная обшивка. Чтобы обшить строение внутри, используется пластик или деревянная вагонка. Венчает работу устройство освещения.
Готовые кабинки для туалета на даче

Среди современных дачников, пользуются популярностью, так называемые стандартные варианты. Они внешне похожи на миниатюрные домики в основе конструкции которых лежит дерево и стоковые емкости. В последнее время появились туалеты био типа. Установив такой туалет, нет необходимости в создании сточных ям, но саму кабинку строить все же необходимо.
Чтобы сделать туалет на даче своими руками чертеж подбирается в индивидуальном порядке, конечно если же владелец, желает эксклюзивную конструкцию. В чертеже должно быть указано какой материал требуется для процесса возведения и сколько его необходимо, размеры строения, его месторасположение и другие нюансы.
Если нет желания тратить время на стройку туалета на даче своими руками инструкция, чертеж с размерами в готовом виде всегда кстати в таких ситуациях.
В случае изготовления проекта важно не забыть, тот факт, что часть туалета, размещенная впереди, должна быть обязательно выше стены расположенной сзади. Во время плохих погодных условий, вода будет стекать назад, и вам во время входа в кабинку не будет капать на голову
В ситуации, когда владелец решает изготовить деревянное перекрытие кровли, в проект, нужно внести все расчеты, которые касаются организации деревянного потолка и желательно дополнить его размерами кровельного материала. По завершению проектирования, рекомендуется подбить итоги по количеству необходимого материала и определить общую стоимость туалета.
Приблизительная схема и параметры конструкции, для проведения работы:
- изготовления каркаса проводится из бруса, а также применяется доска;
- готовое строение должно иметь параметры: не более двух метров от фундамента в высоту, не менее одного с половиной метра в ширину, более точно узнать размеры можно на подобном чертеже;
- части, находящиеся сзади и спереди прямоугольной формы, а вот боковые части трапециевидные, за счет чего получается добиться наклона для стока воды во время дождя или схода снега;
- чтобы в помещение поступал естественный свет, и кабинка вентилировалась, в верхней части стенки, находящейся сбоку вырезано окошко;
- над канализационной ямой перекрытие организовано с досок толщиной 5 см и обшито листовым деревянным материалом;
- перекрытие по представленному чертежу установлено на основание из бруса сечение которых 150 на 150 мм и зафиксировано с помощью гвоздей.
- для увеличения прочности соединения на досках заранее изготовлялось пазы и выступы;
- как указано на чертеже, дверной проем для такой конструкции должен иметь высоту до двух метров и ширину до метра, изготавливается этот элемент из обрезной доски и обшивается ОСБ;
- крепление дверей проводится установленный вертикально брус 150х150 мм;
- для конструирования крыши на сооружении, установлены стропила, из досок шириной 10 см и толщиной 5 см, на расстояние друг от друга в 40см.
- для проведения качественной фиксации используемого материла, применяются гвозди, а в качестве покрытия сверху можно класть листы профильного типа.
Если взять готовый план сконструировать по нему свою постройку, то все заметки могут быть видоизменены согласно предпочтению владельца.
Если туалет из деревянного материала, то во время изменения размеров на готовом плане, необходимо соблюдать строгую пропорциональность. В этом случае потребуется больше материалов и увеличится стоимость на конструкцию.
Как сделать сливную яму из шифера
Для укрепления стенок выгребной ямы часто используется волновой шифер. Для этого выкапывается ямы прямоугольной формы, размеры которой должны соотноситься с размерами выбранного шифера.
Первый лист укладывается на дно. Следующий укладывается на первый таким образом, чтобы волны листов соприкасались в самых высоких точки. Шифер укладывают подобным образом до тех пор, пока доя самой верхней точки подготовленной ямы не будет оставаться 0,3 – 0,4 м.

В верхнюю четверть сформированной конструкции вставляется сливная труба. Для укрепления конструкции используются битые кусочки шифера и производится засыпка пустого пространства грунтом.
Вместо волнового шифера можно использовать плоский. Порядок выполнения работ в этом случае несколько отличается.

Для этого:
- Выкапывается яма, размеры которой должны соотноситься с габаритами выбранных листов;
- Варятся две металлических рамы. Для их изготовления используются уголки;
- Первую укладывают на дно;
- К углам нижней рамы приваривают трубы. Вторую часть трубы приваривают к соответствующим углам верхней рамы;
- Шифер прикручивается к изготовленному каркасу. Для его фиксации используются саморезы;
- Пространство между стенкой ямы и шифером заполняют грунтом и тщательно утрамбовывают.
Проектирование кирпичного туалета с чертежами
Фундаментом для кирпичного туалета может служить железобетонный бордюр, углубленный в грунт, или бетонные блоки, расположенные по углам конструкции.
Стандартная небольшая кабина с площадью стен в пределах 8 квадратов потребует около 300 кирпичей для возведения. Расчет примерный и очень утрированный, но для общего понимания процесса этой информации достаточно.
Последовательность действий при укладке тычкового и ложкового рядов кирпичной кладки. Стены туалета должны быть прочными, ведь постройкой будут пользоваться не один год
Для такого объема кладки нужно запроектировать около 60 кг цемента для приготовления раствора. Размеры кирпичного дачного туалета можно взять с чертежа туалета-скворечника.
Если деревянные стены изготавливают по отдельности, то дачный сортир из кирпича выкладывается порядово по всему периметру.
Цементный раствор требует времени для набора прочности. Если выложить за раз все ряды кладки, на нижние будет приходится большая нагрузка, под действием которой не схватившийся раствор просто выдавится наружу из всех швов.
Чтобы этого не произошло, кладку осуществляют в несколько этапов. Оптимально – по 4-5 рядов в день. Строительство затянется, но результат будет гораздо лучше.
Проемы нужно отобразить на чертеже заранее, чтобы в процессе кладки не отвлекаться на лишние расчеты и подгонку
Кровля может быть односкатной, как в случае деревянного дачного скворечника-уборной, так и двускатной. В зависимости от этого меняется схема расположения стропильной сетки. Кроют туалет все тем же шифером, профнастилом или другими материалами покрытия.
Кроме перечисленных видов клозетов, на нашем сайте есть статья о том, как спроектировать и построить туалет с душем. Это особенно актуально, если территория дачного участка не слишком большая.
Нормы установки туалета на участке
Большая часть ограничений относится к туалетам с выгребной ямой: необходимо ограничить возможные загрязнения. Нормы такие:
- До источника воды — озера, реки, колодца, скважины и т.п. — должно быть не менее 25 метров. Это касается и источников, расположенных на соседних участках.
- До подвала или погреба — не менее 12 метров.
- До ближайшей обитаемой постройки — душа, бани — не менее 8 метров.
- До построек, где содержатся животные — не менее 4 метров.
- Ближайшие деревья должны находится в 4 метрах, кусты — в 1 метре.
На плане участка постарайтесь выбрать место, которое удовлетворяет всем требованиям
Остальные нормы справедливы для всех типов туалетов:
- До границы участка должно быть не менее 1 метра.
- Двери не должны открываться в сторону соседнего участка.
- При выборе места расположения нужно учитывать преобладающее направление ветра.
Выбирая место, где будете строить туалет для дачи своими руками, обращайте внимание не только на собственные постройки и объекты, но и на соседские. Это поможет избежать трений с ними и с санстанцией
Если строить будете туалет с выгребной ямой, ко всем перечисленным требованиям нужно еще добавить — организацию подъезда для машины-ассенизатора.

























































