Обшивка каркаса
Сделать обшивку ранее сделанного деревянного каркаса не сложно. В загородном строительстве преобладают натуральные материалы, поэтому мы в обшивке своими руками будем использовать деревянные доски (вагонка, имитация бруса, брус, бревно):
- Размер доски должен соответствовать размерам дачного туалета. Толщина должна быть 1,5-2,5 сантиметра. При монтаже обшивки доски должны располагаться вертикально по отношению к земле. Также спиливаться они должны под углом, потому что крыша будет сделана под наклоном.
- Не запрещено заменить доски на другой материал. За досками нужен постоянный уход, потребуется септик для защиты от пагубных воздействий. Естественная вентиляция туалета возможна только при использовании дерева.
- Не нужно забывать про устройство открывающейся крышки в задней части ямы. Только при её наличии комфортно будет проходить очистка выгребной ямы. Регулярная очистка выгребной ямы — отличное средство для избавления от неприятного запаха без использования химии: биоактиваторов и биопрепаратов.
- Крышу уборной можно сделать из того же материала, что и на доме. Это позволит гармонично вписаться туалету в общую картинку дачной территории.
Сделав обшивку каркаса, остаётся заключительный этап по обустройству дачного туалета. После монтажа всех досок, необходимо сделать обработку септиком, чтобы они не покрылись грибком и плесенью.
Возведение наземной части уличного санузла
После устройства своими руками фундамента для уличного туалета и установки емкости, нужно приступать к возведению будки. Данный процесс состоит из следующих этапов:
- На поверхность фундамента нужно уложить кусок рубероида.
- Деревянный брус размером 100х100 мм нужно использовать для нижней обвязки основания под пол. Перед этим его необходимо обработать антисептическим раствором.
- Чтоб соорудить надежное основание, установите бруски по периметру сооружения и посередине длинной стороны сооружения, прикрепите их при помощи гаек, предварительно насадив на металлические штыри.
- При помощи досок толщиной 40 мм соорудите пол будущего туалета. При этом необходимо оставить отверстие под унитаз, где находится емкость.
- В углах основания закрепите 4 деревянных столбца. Два из них должны иметь высоту 2 м, а другие два – 2,2 м. Выбирайте бруски сечением 100х50 мм. Прикрепить их нужно при помощи металлических уголков и деревянных распорок. Перед окончательной установкой каркаса проверьте вертикальность стоек.
- На передней стенки под двери установите дополнительные столбцы такого же сечения. Ширина проема должна составлять 0,7 м, а высота 1,97.
- Стойки с другой стороны скрепите при помощи вертикальной перемычки на уровне 1,77 м, что также будет являться основанием для крыши.
- Вдоль сооружения, опираясь на установленные перемычки, прикрепите две стропильные ноги.
- В качестве обрешетки для крыши используйте доски толщиной 40 мм, которые нужно прикрепить к стропилам при помощи обычных гвоздей.
- К решетчатому покрытию при помощи шурупов установите лист OSB, который будет исполнять роль основания под кровельный материал.
- В качестве покрытия используйте мягкую битумную черепицу или рубероид. Нужно выбирать материалы, которые не будут создавать дополнительной нагрузки на конструкцию.
- Для облицовки стен используйте шпунтованную или полушпунтованную доску толщиной 2-4 см.
- Чтоб внутри сооружения не было жарко летом и холодно зимой, нужно своими руками сделать теплоизоляцию. Для этого установите во внутреннюю плоскость каркаса листы пенопласта. После этого его нужно дополнительно зашить стенки еще одним слоем доски.
- На все деревянные элементы нанесите специальную пропитку, которая защитит их поверхность от пагубного воздействия влаги и других негативных факторов внешней среды. Также дополнительно можно использовать огнезащитные составы.
- На завесы установите двери. Можете их оборудовать небольшим окошком, чтоб осветить внутреннее пространство помещения в дневное время.
Как избавиться от запаха в туалете
Устройство любого туалета без запаха, помимо унитаза с гидрозатвором, включает вентиляцию. Для электрических биотуалетов и некоторых моделей торфяных — это принудительная вытяжка. В остальных случаях, в том числе с выгребной ямой, достаточно естественной вентиляции.
Обустройство вентиляции
Обустройство вентиляции выглядит так:
- для притока свежего воздуха делают небольшую щель в двери туалета;
- закрывают щель декоративной решеткой;
- напротив щели в стене, ближе к потолку, делают отверстие под трубу;
- выводят короткую трубу наружу, коленом соединяют с длинной (выше крыши кабинки), крепят хомутами к стене;
- на верхний срез трубы надевают козырёк, защищающий ее от осадков.
Туалет на даче без запаха можно сделать, используя современные материалы и готовые решения. А выбор конкретного варианта зависит лишь от необходимой «производительности» и бюджета.
Как сделать выгребную яму в частном доме своими руками
Изготовление фильтра в пылесос своими руками
Изготовление циклонного пылесоса своими руками
Как сделать пылесос для строительной пыли своими руками
Изготовление моющего пылесоса своими руками
Сжигание мусора на даче в железной бочке — как правильно жечь отходы
Туалет на даче без запаха
Неприятный запах от дачного туалета с выгребной ямой может распространяться по трем причинам:
- негерметичная накопительная емкость;
- запах стоков из отверстия стульчака;
- плохая вентиляция кабинки.
Источники запаха в самом туалете блокируют стандартными способами ватерклозета: смыв и гидрозатвор унитаза. Конечно, накопительная ёмкость будет наполняться быстрее, но это плата за комфорт.
В качестве накопительной емкости могут использоваться разные конструкции и материалы:
- Яма из кирпича. Достоинство — любая форма и объем. Недостаток — высокая стоимость и трудоемкость, гигроскопичность материала. Необходима двойная гидроизоляция дна и стенок, иначе стоки будут просачиваться наружу или грунтовые воды внутрь.
- Металлическая емкость. Два варианта: изготовить своими руками, купить бывшую в употреблении.
- Пластиковая емкость. В продаже есть уже готовые к установке накопительные емкости для септиков и выгребных ям. Также популярна переделка «еврокубов» для сбора стоков.
- Бетонный колодец. Есть два способа изготовления: заливка монолитной железобетонной конструкции, сборка из стандартных колодезных колец. Второй вариант конструкции проще и быстрее в изготовлении.
Герметичность ямы необходима не только для того, чтобы она не пахла. Сброс нечистот в грунт приравнивается к умышленной порче земли, что подпадает под действие КоАП РФ, Земельного кодекса и закона «Об охране окружающей среды».
Выбор места
Перед выкапыванием котлована под выгребную яму, нужно подобрать место для него. Перечень определённых правил позволяет выбрать оптимальное место.

Фундамент под деревянный туалет можно и не делать
Данный перечень состоит из следующих пунктов:
- Яму нужно разместить на 25-метровом расстоянии от источников воды.
- Чтобы в доме не было резкого запаха запаха, уборную необходимо отдалить на 12 метров.
- Уличный душ или баня должны располагаться на расстоянии в 8 метров от выгребной ямы.
- Загоны с животными должна находиться на 4-метровом расстоянии от дачного туалета.
- При установке дачной уборной требуется учитывать направление ветра на участке. Это позволит избежать появления неприятного запаха в доме.
- Грунтовые воды должны находиться на глубине от 2,5 метров. В противном случае установка уборной с использованием выгребной ямы запрещена.
В случае возведения уборной без использования выгребной ямы, можно не брать во внимание эти рекомендации и правила, за исключением направления ветра. Выполнение этого пункта не позволит неприятному запаху появиться в вашем доме
Сборка крыши дачного туалета
Обшив боковые стены, сооружаем крышу. Так как строение еще недостаточно массивно и слабо закреплено, то при работе на высоте с лестницы следует применять дополнительную страховку, лучше всего для этих целей использовать укрепленную стремянку.

Закрепив крышу по линии конька (верхнего стыка), проверяют соответствие углов ската на смежных поверхностях. Обычно он составляет около 30-ти градусов.

По окончании установки каркаса крыши зашивают заднюю стену и подшивают свесы, как показано на фотографии:

После выполнения описанных выше работ, основные строительные работы можно считать законченными.

На заключительном этапе проверяют степень затяжки всеж шурупов, вертикальность стеновых конструкций, горизонтальность пола в различных плоскостях. В случае каких-либо нарушений производят юстирование путем подсыпки гравия под приподнятый фундамент, установки распорок или других конструкторских приемов. Тщательно закрепляют основание туалета, устанавливая дополнительный крепеж в нижней части фундамента. Столбики бетонируют по бокам для окончательного закрепления местоположения.
Как проходит постройка наземной части туалета
После того, как дачник определился с выбором отхожей ямы, стоит задумать и о верхнем внешнем виде. Здесь все зависит от фантазии человека, а различные строительные материалы помогут сделать туалет на даче не только нужным, но и красивым помещением.
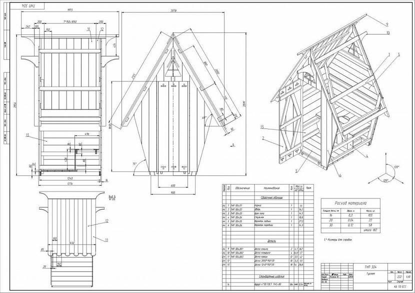
В первую очередь, нужно выбрать оптимальные размеры строения. Они не должны быть чрезмерно большими, но и не слишком маленькими. В противном случае, тучный человек туда просто не поместится. В качестве чертежей туалета для дачи можно взять хотя бы следующую схему, или заказать у специалистов индивидуальный расчет.

Чертеж дачного туалетаИсточник stroypay.ru
- В первую очередь строят нижнюю основу, на которую следующим шагом устанавливают каркас. В качестве строительного материала, здесь, в основном, используют брус.
- Задняя стена должна быть ниже передней примерно на 10 см. Делается это для обеспечения наклона крыши. На передней стенке обязательно делают крепление двери. При необходимости вырезают отверстие под окно.
- Далее каркас обшивают выбранным материалом. Если туалет предполагается без унитаза, то сиденье под стульчик, также обшивают.
- Наружная часть может выполнена из любых материалов. Дизайн также может быть разнообразен.

Варианты дизайна для дачного туалетаИсточник vannayasovety.ru
Расположение туалета на даче
Перед тем, как построить уличный туалет своими руками, нужно рассмотреть все правила, касающиеся его расположения. Любой тип дачного туалета с выгребной ямой можно располагать на участке, где глубина залегания почвенных вод превышает 2,5 метра
Помимо глубины почвенных вод, нужно принимать во внимание правила и нормативы, регламентирующие расположение туалета на даче. Устройство туалета на даче должно выполняться на определенном расстоянии от различных объектов:
Устройство туалета на даче должно выполняться на определенном расстоянии от различных объектов:
- Источники воды (колодцы, озера, реки и пр.) – расстояние не менее 25 м;
- Жилые постройки и погреба – минимальное расстояние составляет 12 м;
- Душевые кабины и банные постройки – 8 м;
- Плодовые и декоративные деревья – не менее 4 м;
- Кусты и заборы – 1 м.

Если уж мы строим туалет на даче, то при выборе места для него нужно обязательно учитывать все объекты, включая те, которые расположены на соседних участках. Кроме того, рекомендуется учесть розу ветров, чтобы запах нечистот не портил впечатление о пребывании на даче. При наличии уклона участка оптимальным местом для туалета будет точка, расположенная на минимальной высоте.
От теории к практике
Ну вот и добрались мы до технической части нашей статьи. Когда вы разобрались со всеми моментами и тонкостями при выборе колодцев для сточных вод, тогда нужно провести определенные расчеты для обустройства ямы без пластиковых поддонов:
Подберите теплоизолирующий слой для выгребной ямы. Вы же понимаете, что нет никакой нужды в том, чтобы жидкости при морозе замерзали и в итоге разрушали конструкцию ваших трудов. Подготовьте котлован для создания там будущей выгребной ямы в связи с расчетами ранее. Три четвертых кубометра на человека, если глинистая порода земли, или полметра при обычных условиях. Кирпичная кладка и прокладка труб. Этот процесс взаимосвязан
Но, примите во внимание, что трубы должны располагаться на два-три сантиметра с продвижением на каждый метр. Если упустить эту небольшую деталь, то есть вероятность забивания труб и, как результат, проблемы с проводимостью жидкостей и масс
На счет стен, то их можно укладывать не только из кирпича, но и с помощью бетонных колец. Примерно через два метра от поверхности, или на втором кольце от верха, проводится труба вовнутрь колодца. Заканчиваем работу соединением труб между собой и размещением крышки люка над кольцами сливной ямы. Вокруг люка создаем небольшой окоп, чтобы качественно уложить бетонную плиту, но оставив люк над землей. Проводите очистку данной конструкции раз в два месяца регулярно или в зависимости от наполненности ямы.
На счет стен, то их можно укладывать не только из кирпича, но и с помощью бетонных колец. Примерно через два метра от поверхности, или на втором кольце от верха, проводится труба вовнутрь колодца. Заканчиваем работу соединением труб между собой и размещением крышки люка над кольцами сливной ямы. Вокруг люка создаем небольшой окоп, чтобы качественно уложить бетонную плиту, но оставив люк над землей. Проводите очистку данной конструкции раз в два месяца регулярно или в зависимости от наполненности ямы.
Поговорим о герметизации, а именно о сливных ямах с герметизацией. Она подходит для домов, в которых приходится по восемь кубометров на душу в день. То есть, включает в себя использование ванны, посудомоечной и стиральной машин. Чистить такое чудо цивилизации нужно от трех раз в месяц, но сейчас о ее создании:
Пластмассовый септик — вариант герметичной канализации
- Определитесь с типажом герметичной сточной ямы. Это может быть как закупоренный бетонный колодец, а может и огромный пластмассовый контейнер. Все зависит от ваших предпочтений и желаний. Отличной рекомендацией для практичных хозяев является так званый «еврокуб». Он вмещает в себя около тысячи кубометров и сделан в основном из пластика, что обеспечивает ему комфортную цену и легкость при перевозке и установке.
- Устанавливаем приобретение в грунт в соответствии с размерами конструкции.
- Встраиваем вентиляционную шахту площадью от двадцати сантиметров квадратных, которая должна находиться на уровне около восьмидесяти сантиметров от поверхности земли в данной области.
- Размещение труб. Занимаясь прокладкой труб, обходите стороной деревья, чтобы не появились ненужные проблемы в тот момент, когда потребуется заменить или прочистить трубу именно в том месте. Также размещайте трубы на уровне, что ниже линии промерзания грунта в вашем районе. Сохраните жизнь трубам и не дайте им лопнуть раньше времени.
Как видно, в этом нет ничего сложного и в случае с выгребной ямой без герметичного дна можно обойтись и без специалистов. Главное – сделать правильный расчет и набраться терпения. Не бойтесь пробовать менять вашу жизнь к лучшему. Успехов в новых начинаниях.
Пошаговая инструкция обустройства туалета с выгребной ямой
Самым идеальным вариантом на даче считается строительство туалета с выгребной ямой. Несмотря на то, что ее необходимо выкопать, забетонировать и периодически откачивать, данному типу туалета отдают предпочтение практически все дачники. Надземную часть сортира можно построить из любого материала (металла, кирпича, старых поддонов). В данной статье мы остановим выбор на сооружении деревянного сортира.
Что понадобится для работы
Для строительства уличного туалета из дерева необходимы следующие материалы:
- древесина;
- бетон;
- песок;
- щебень;
- саморезы или гвозди;
- кровельные материалы;
- антисептик и пропитка повышающая пожаробезопасность;
- лакокрасочные материалы;
Из инструментов понадобятся:
- электролобзик;
- шлифмашинка;
- молоток;
- строительный уровень;
- лопата и бур (для выполнения земляных работ);
- болгарка.
Оптимальные размеры кабинки
Для удобной эксплуатации уличным туалетом достаточно сделать кабинку следующих размеров:
- высотой 2,2 м – 2,4м;
- шириной – 1,4 м – 1,8 м;
- глубиной – 1,2 м-1,4 м.
Чертёж дачного туалета с выгребной ямой
Прежде чем приступить к рабочему процессу потребуется сделать эскиз будущей постройки. На нем необходимо указать точные размеры самого здания и выгребной ямы. Наличие подробного чертежа поможет избежать грубых ошибок при строительстве, что не только упростит строительство сортира, но и сэкономит расходные материалы и свободное время.
Порядок действий при строительстве
Как построить туалет быстро, качественно и недорого? Для этого следует соблюдать следующий порядок действий:
- Подготовить место для строительства (очистить участок от мусора, камней, пней).
- Сделать разметку под постройку.
- Выкопать яму и забетонировать ее.
- Соорудить ленточный мелкозаглубленный фундамент, так как дерево имеет небольшой вес.
- Сделать пол и обрешетку под установку унитаза.
- Соорудить каркас и обшить его досками.
- Обустроить крышу.
- Завершающим этапом является внутренняя и наружная декоративная отделка. Так как дерево красивое само по себе, его лучше оставить как снаружи, так и внутри постройки. Единственное, древесину можно покрыть морилкой и лаком.
Как видно, построить туалет на даче своими руками вполне реально. Главное, запастись свободным временем, материалами, инструментом, подготовить подробный чертеж. Имея небольшие навыки в строительной сфере, практически каждый мужчина способен соорудить уличный сортир из любых материалов, отличающийся прочностью, надежностью и долговечностью.
Вентиляция выгребной ямы уличного туалета на даче с фото
Одним из главных недостатков выгребной ямы является выделение газов. Разложение фекалий представляет собой процесс кислого брожения, в результате которого образуются органические кислоты и выделяются зловонные газы, в том числе и сероводород.
Сделать выгреб полностью герметичным практически невозможно. Газы должны удаляться из выгреба, в противном случае через различные щели они могут проникнуть в расположенные рядом жилые помещения. Гигиеничность туалета помогает обеспечивать противомоскитная сетка, устанавливаемая на окошке туалета, и вентиляционная труба, выведенная на уровень его крыши или на 70-80 см выше нее.
Вытяжная вентиляция в туалете на даче из асбестоцементных или пластиковых труб диаметром 100 мм должна фиксироваться к задней стене туалетной кабинки с помощью металлических скоб.
В вентиляционное отверстие рекомендуется установить патрубок еще до бетонирования. Следует отметить, что вытяжки не всегда бывает достаточно для обеспечения качественной и действенной вентиляции в уличном туалете на даче, иногда запахи не удается полностью устранить даже с помощью специальной вентиляционной трубы.
Выгребную яму нельзя устраивать в том случае, если есть намерение использовать фекалии в качестве удобрения, поэтому при возведении новых строений нет смысла устраивать подобные туалеты.
Для устранения запахов при устройстве вентиляции в дачном туалете своими руками необходимо усилить тягу в трубе. Проще всего это сделать, применив для увеличения тяги энергию солнца или ветра.
Заднюю стенку следует покрыть листом металла, выкрашенного в черный цвет. В таком случае солнце будет нагревать воздуховод, и горячий воздух, который намного легче холодного, будет подниматься вверх.
На фото вентиляции в туалете на даче показано, как производится монтаж:
Для использования силы ветра в этих же целях на оголовке трубы необходимо расположить дефлектор из конусной насадки и колпака, защищающего кабинку и выгреб от попадания осадков.
Насадка может быть выполнена из небольшого оцинкованного ведра с выбитым дном. Она должна быть зафиксирована к трубе с помощью стяжного хомута. Колпак в виде конуса следует плотно закрепить к насадке, используя три металлические «лапки». Дефлектор, с помощью которого ветер будет усиливать восходящий ток воздуха в вентиляционной трубе, можно также сделать из листового оцинкованного железа.
(Visited 1 095 times, 1 visits today)
Изготовление
Когда под туалет выбран участок, вы определились с типом системы утилизации отходов, а также придумали, какой будет надземная конструкция туалета – можно приступать к процессу. Далее мы расскажем и покажем на фото и видео, как поэтапно построить туалет с выгребной ямой на даче своими руками, используя чертежи с размерами.
В целом процесс можно разделить на такие шаги:
- Выкапываем выгреб.
- Закладываем фундамент.
- Сооружаем домик.
Для работы будем использовать следующий чертеж (параметры вы можете менять под свои потребности):
Чертеж.
Выгребная яма
Для работы могут потребоваться следующие инструменты:
- лопаты;
- уровень и рулетка;
- ручной бур;
- молоток;
- шуруповерт;
- шлифмашинка;
- лом/бур;
- лобзик.
Из материалов будем использовать:
- песок;
- цемент;
- щебень;
- арматура и металлическая сетка;
- плотная полиэтиленовая пленка.
Инструкция по обустройству ямы:
- Определите форму выгреба в соответствии с проектом туалета. Обычно это круглая или квадратная форма, может быть прямоугольной.
- При использовании накопительного резервуара правильно определите его расположение – входное отверстие должно располагаться на месте стульчака, второе – выходит за пределы постройки. В таком случае выгреб роется по форме емкости, прибавляя по 30 см с каждой стороны.
- На дно выгреба помещается толстый дренажный слой из крупных камней, кирпича.
- Укрепляем стенки выгреба. С этой целью фиксируем к ним сетку-рабицу и армирующую решетку. Для закрепления можно воспользоваться металлическими штырями.
- Стенки бетонируем слоем 5-10 см и дожидаемся полного высыхания. После оштукатуриваем.
- Сверху устанавливаем плиту перекрытия – она же будет служить фундаментом.
- Сверху на яму укладываем деревянные брусья, предварительно пропитанные защитным раствором. Можно вместо них использовать бетонные столбы. Эти конструкции нужно углубить по уровень земли.
- Поверхность застилается полиэтиленом, под люк и сидение оставляются отверстия и обрабатываются опалубкой.
- Сверху на пленку укладываем решетчатый каркас, заливаем все бетоном и дожидаемся высыхания. Готово, остается построить домик.
Устройство ямы.
Также читайте: выгребная яма без откачки.
Если планируется построить простой, дешевый туалет для редкого использования, яму можно обустроить покрышками. Пошаговый алгоритм действий простой:
- Выройте углубление по форме покрышек, прибавив 20 см в диаметре.
- Дно засыпьте щебнем, слоем 20 см.
- По центру выложите покрышки одна на другую, верхняя должна равняться с почвой.
- Пространство по бокам засыпьте песком и гравием, тщательно уплотняя слои.
- Сооружаем фундамент. По периметру вырываем углубление на 0,5 м. Заполняем его песком и щебнем по 10 см.
- Перекрываем полиэтиленовой пленкой.
- Создаем каркас. Для этого используем кирпичи, заливая цементом, либо арматуру с цементом.
- После высыхания бетона его нужно оштукатурить, покрыть рубероидом и поставить домик.
Яма из покрышек.
Если выгреб обустраивается при помощи бочки, алгоритм действий идентичный.
Выгреб из бочки.
Домик
Теперь приступаем к довольно творческой части – сооружению домика. Расскажем и покажем пошагово на фото с чертежами процесс изготовления дачного туалета своими руками.
Совет: постарайтесь делать конструкцию максимально легкой, чтобы грунт по максимально долго не проседал.
Конструкция домика может быть самой разной – «теремок», «шалаш», «мельница», «домик».
Виды туалетных домиков.
На фото ниже изображен черте простой конструкции теремка.
Чертеж домика туалета.
Для сооружения «шалаша» используйте следующий чертеж:
Чертеж конструкции типа шалаш.
Для простой кабинки («скворечник») воспользуйтесь этим чертежом:
Прямоугольная туалетная кабинка.
Изготовление максимально простое. По схеме необходимо сделать каркас из брусьев, оббить его досками. Далее уложить кровельный материал, поставить окна и двери. В завершение необходимо сделать внутреннюю отделку, оклеив стены обоями или покрасив краской.
Совет: сам стульчак необходимо приобрести из пластика с прямым отверстием. Устанавливать обычные керамические городские модели нельзя по причине их большого веса, а также внутреннего уклона для смыва.
Деревянный туалет внутри.
Таким образом, вы узнали, как построить уличный туалет на даче своими руками, используя для этого чертежи с размерами, фото и видео. Как видите, этот процесс несложный, но к обустройству стоит подойти ответственно, ведь постройка на долгое время определит комфорт пребывания на загородном участке.
Видео: дачный туалет своими руками.
Монтаж домика-шалаша
Подготовительные работы:
- необходимо построить площадку-пол и, оставив отверстие, зашить досками;
- дощатое напольное покрытие обрабатывают два раза антигрибковым составом;
- готовую площадку помещают на основание;
- сколачивают задние и передние стенки и обшивают их вагонкой.
Собирают конструкцию полностью согласно чертежу:
- устанавливают обе стенки, их крепят к площадке-полу, используя технологичные доски, которые в дальнейшем убирают;
- делают обрешетку и покрывают гидроизоляционным составом;
- крышу строят из досок внахлест, фиксируя их кровельными саморезами и покрывая коньком;
- размещают дверной блок, а проем обрамляют наличником.
Туалет душ для дачи – возможные варианты строительства
Какой туалет можно построить на даче
Как и несколько десятилетий назад, использование обычного «деревенского» туалета, где основную роль играет выгребная яма, продолжает быть актуальным. Но имеются и другие варианты этого деликатного сооружения. Дачники могут себе позволить:
- Пудр-клозет;
- Люфт-клозет;
- Торфяной туалет;
- Биотуалет.
Часть из перечисленных вариантов представляют собой небольшой сосуд, устанавливаемый в помещении дома. А остальные предполагают наличие такого элемента, как выгребная яма, куда и будут поступать фекалии и стоки. Компактные туалеты для дачи позволяют быстро решить проблему, но они не всегда удобны для пользователей. К тому же при большом количестве гостей, может потребоваться более габаритное сооружение, в основе которого находится выгребная яма.
Вот почему большинство владельцев дач предпочитают строить уличные туалеты, где основным элементом является выгребная яма. Данный привычный вариант сооружения можно легко сделать своими руками, что и привлекает основную массу дачников. К тому же выбрать нужно всего лишь один тип из двух:
- Обычная выгребная яма;
- Герметичная выгребная яма.
От выбора в значительной степени зависит место, где должна находиться яма будущего туалета для дачи.

























































